Maite filter
旋流脫氣除汙器
免費定製方案 免費到廠考察 免費獲取報價!
產品說明:螺旋脫氣除汙器(水氣分離器)水係統中的空氣對係統中的水泵、鍋爐、熱交換器、製冷機等設備及部件易產生腐蝕和損壞,使用壽命及效率大大降低。僅在係統高點設置排氣閥效果不佳,當壓力減少時被溶於水中氣體會重新形成氣泡,尤其在水泵前會有大量氣體分離出來...
糖心官网地址過濾設備攜手各行業打造滿足糖心官方官网下载需求產品的保障
螺旋脫氣除汙器(水氣分離器)水係統中的空氣對係統中的水泵、鍋爐、熱交換器、製冷機等設備及部件易產生腐蝕和損壞,使用壽命及效率大大降低。僅在係統高點設置排氣閥效果不佳,當壓力減少時被溶於水中氣體會重新形成氣泡,尤其在水泵前會有大量氣體分離出來。
產品簡介:
螺旋脫氣過濾器利用氣水分離、沉降、過濾等機理。當冷卻水、熱水、冷凍水係統中水進入螺旋脫氣過濾器時,體積擴大,流速急劇降低,水中氣泡分離上升至聚氣區,小氣泡吸附在分離板上,當形成大氣泡上升至聚氣區後通過自動排氣閥排除。帶有汙物的循環水在過濾器中汙物隨水流沉降,通過分離板後汙物得到了加速,在濾芯的兩側迅速沉降在存汙區,因存汙區容汙量大,隻需定期開啟排汙閥。經過空氣和汙物分離較幹淨的水經濾芯流入水泵入口,由於水泵及水流的衝擊下濾芯有較小的振動,能將個別貼附在濾芯外側的汙物振落,達到自潔的目的。
通過一個裝置起到的淨化水係統中的氣泡和雜質的功能。由於這個整合的舉動,所有的氣泡和微小的雜質將會被永久的脫除,保持係統不受氣泡和雜質得困擾。它與傳統的過濾器和除汙器工作方式不同,維護很少。這個裝置是否能夠在供熱係統裏發揮它的作用取決於不同方麵。糖心官网地址的技術專家會根據實際情況給予您好的解決方案。
脫水除汙器必須安裝在主線上,而且好為係統溫度高點。對於供熱係統,佳位置是供熱機組的出口。對於製冷係統,溫度高點在製冷機組的回水管上。
技術參數:
(1)壓力範圍:0.6、1.0、1.6MPa;
(2)高使用溫度:95℃;
(3)規格型號:DN50~DN1500;
(4)流量範圍:7-20000m3/h
(5)過濾網常用規格:8、10、14、20、30、70、150目
(6)排氣率:99%
(7)排汙率:99%
(8)處理效果: 除砂直徑:>0.1mm、出水濁度:≤10NTU、水頭損失:<0.02Mpa
(9) 進水水質:原水濁度:≥300NTU進水壓力:≤0.25Mpa
(10)特殊規格按用戶要求特製。
設備特點:
● 脫除循環係統中的氣泡和氣團
● 大幅減少係統次注水後的調試時間,不需要額外的排氣閥
● 可在係統運行的情況下排除汙物
● 可以脫除小至5微米(=0.005MM)的汙物雜質
● 同類產品中低的壓降比
● 不會造成不必要的係統停機
● 廣泛適用於不同壓力,溫度和材質
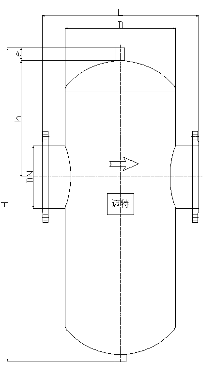
設備簡圖:

選型參數:
型 號 | 管徑DN(mm) | 流量(m3/h) | 外型尺寸(mm) | 重 量 (Kg | ||||
H | h | D | e | L | 29 | |||
MQT-S50 | 50 | 25 | 510 | 160 | 220 | 20 | 470 | 33 |
MQT-S65 | 65 | 40 | 510 | 150 | 220 | 20 | 470 | 57 |
MQT-S80 | 80 | 55 | 640 | 200 | 330 | 25 | 640 | 61 |
MQT-S100 | 100 | 95 | 640 | 210 | 330 | 25 | 640 | 97 |
MQT-S125 | 125 | 145 | 830 | 290 | 426 | 25 | 780 | 114 |
MQT-S150 | 150 | 220 | 830 | 300 | 426 | 25 | 780 | 189 |
MQT-S200 | 200 | 360 | 980 | 360 | 610 | 25 | 890 | 300 |
MQT-S250 | 250 | 575 | 1200 | 400 | 610 | 50 | 1010 | 390 |
MQT-S300 | 300 | 810 | 1580 | 450 | 710 | 50 | 1200 | 563 |
MQT-S350 | 350 | 1030 | 1720 | 500 | 810 | 50 | 1420 | 670 |
MQT-S400 | 400 | 1350 | 1810 | 550 | 920 | 50 | 1220 | 870 |
MQT-S450 | 450 | 1710 | 2030 | 610 | 1020 | 50 | 1620 | 1118 |
MQT-S500 | 500 | 2120 | 2170 | 660 | 1120 | 50 | 1710 | |
備 注 | 設備壓力默認為1.6Mpa,MQT-S40、MQT-S50默認為螺紋連接,如有特殊要求,訂貨時請說明,也可根據糖心官方官网下载要求訂做其它規格的設備。 | |||||||
細節展示:

安裝注意事項:


MQT-S基本型 MQT-XS 可拆卸型
1. 設備必須水平安裝,安裝時注意箭頭指示方向,箭頭指示方向即為水流方向。
2. 由於該設備工作過程中無運動部件,免維護,因此設計、安裝時可根據現場實際情況布置。
3. 設備進出口的管道上,應以靠近管口處設置管道支架;直接與容器管口相連接的大於或等於DN150的閥門下麵宜設置支架。
4螺旋除渣器進出口均為國標法蘭。設備進水口、出水口均需安裝 閥門。
8 使用說明
1. 正常工作時,需開啟進、出水閥門,關閉排汙閥。
2. 排汙時打開排汙閥,直到流出清水。
3. 排汙完畢後,關閉排汙閥即可。
4. 如排汙壓力不足,可關閉出水口處的閥門。
5. 安裝時應注意管道及水流方向。
6. 平麵布置需要流出管理人員操作空間。由於該設備工作過, 程無, 運動, 部件,即該設備免維護。但需保持入口負荷穩定,排汙閥開閉用力均勻。避免人為損壞
糖心官网地址過濾設備攜手各行業打造滿足糖心官方官网下载需求產品的保障
| 設備原理:: | 絲網攔截 | 設備型號:: | MQT |
| 額定流量:: | 0~2000m3/h | 設計壓力:: | 0.4~1.6mpa |
| 設備材質:: | Q235 / 304 /316L | 適用溫度:: | 0~180℃ |
| 適用範圍:: | 市政供暖管道、溫泉井供水係統、鍋爐供水供熱係統、石油天然氣開發、煤層氣開采 |
糖心官网地址過濾設備攜手各行業打造滿足糖心官方官网下载需求產品的保障