Maite filter
自清洗過濾器
免費定製方案 免費到廠考察 免費獲取報價!
產品說明:全自動自清洗過濾器廣泛適用於循環或非循環冷卻水係統、熱交換係統、中央空調係統、集中供暖係統、熱水鍋爐係統等,分別用來保護冷卻設備、熱交換裝置、空調器、鍋爐等。該設備適用行業麵廣,包括建築、化工、電力、冶金、橡膠、造紙、輕紡、煤炭、食品等行業...
糖心官网地址過濾設備攜手各行業打造滿足糖心官方官网下载需求產品的保障
全自動自清洗過濾器廣泛適用於循環或非循環冷卻水係統、熱交換係統、中央空調係統、集中供暖係統、熱水鍋爐係統等,分別用來保護冷卻設備、熱交換裝置、空調器、鍋爐等。該設備適用行業麵廣,包括建築、化工、電力、冶金、橡膠、造紙、輕紡、煤炭、食品等行業。
該設備要求流經過濾器的水溫不可超過85℃。(特殊高溫要求可具體說明)
工作原理:
水由進水口進入過濾器,**經過粗濾芯組件濾掉較大顆粒的雜質,然後到達細濾網通過細濾網濾除細小顆粒的雜質後,清水由出水口排出。在過濾過程中,細濾網的內層雜質逐漸堆積,它的內外兩側就形成了一個壓差。當這個壓差達到預設值時,將開始自動清洗過程:排汙閥打開,主管組件的水力馬達室和水力缸釋放壓力並將水排出;水力馬達室及吸汙管內的壓力大幅下降,由於負壓作用,通過吸嘴吸取細濾網內壁的汙物,由水力馬達流入水力馬達室,由排汙閥排出,形成一個吸汙過程。當水流經水力馬達時,帶動吸汙管進行旋轉,由水力缸活塞帶動吸汙管作軸向運動,吸汙器組件通過軸向運動與旋轉運動的結合將整個濾網內表麵完全清洗幹淨。整個清洗過程將持續數十秒。排汙閥在清洗結束時關閉,增加的水壓會使水力缸活塞回到其初始位置,過濾器開始準備下一個衝洗周期。在清洗過程中,過濾機正常的過濾工作不間斷。

產品功能
全自動自清洗過濾器具有對原水進行過濾並自動對濾芯進行清洗排汙的功能,且清洗排汙時係統不間斷供水。
全自動自清洗過濾器的清洗有兩種控製方式:自動控製和手動控製。
自動控製:自動控製有定時和壓差兩個方式。在過濾時間定時器上設定過濾時間,當過濾時間到,啟動排汙,排汙時間由排汙時間定時器設定;同時控製係統實時將係統壓差與用戶設定的壓差相比較,當係統壓差達到設定壓差時,過濾器也進行清洗排汙,排汙時間由排汙時間定時器設定。排汙時間到,停止清洗,係統恢複至其初始狀態,為下一個過濾工序作好準備。
手動控製:將操作麵板上的手動/自動選擇開關撥到手動位置,過濾器進行排汙。
用戶可根據需要選擇兩種控製方式,具體操作見後麵的操作部分。
產品特點
1) 過濾精度默認為100微米,且從50至3000微米可選,過濾麵積大,納汙量高,用戶可根據實際工況定製。
2) 清洗方式簡單,且清洗循環電子監控,可實現自動清洗排汙。。全自動自清洗過濾器控製係統中的各參數均可調節。
3) 設有電機過載保護,可有效保護電機。
4) 具有在清洗排汙時不間斷供水、無需旁路的特點,且清洗時間短,排汙耗水量少,不超過總流量的1%。
5) 維修性強、安裝拆卸簡便易行。
6) 與用戶管線的連接方式為法蘭連接,法蘭采用國標法蘭
技術性能參數
型號
參數 | N 03 | N 04 | N 05 | N 06 | N 08 | N 10 | N 12 | N 14 | N 16 | N 18 | N 20 | N 24 | ||||
工作電壓 | 交流380V50Hz | |||||||||||||||
功率(kW) | 0.25 | 0.25 | 0.25 | 0.25 | 0.37 | 0.37 | 0.37 | 0.55 | 0.75 | 0.75 | 2.20 | 2.20 | ||||
經濟流量(m³/h) | 45 | 65 | 105 | 150 | 260 | 410 | 590 | 800 | 1050 | 1320 | 1630 | 2350 | ||||
工作壓力(MPa) | 0.1 | |||||||||||||||
工作壓力(MPa) | 1.0 | |||||||||||||||
過濾麵積(cm²) | 1165 | 1367 | 2095 | 3014 | 5270 | 7867 | 11414 | 15552 | 20344 | 25751 | 31786 | 42295 | ||||
進出口公稱通徑(mm) | DN80 | DN100 | DN125 | DN150 | DN200 | DN250 | DN300 | DN350 | DN400 | DN450 | DN500 | DN600 | ||||
排汙閥口公稱通徑(mm) | DN40 | DN40 | DN40 | DN40 | DN40 | DN50 | DN50 | DN65 | DN80 | DN80 | DN80 | DN80 | ||||
排汙時間(秒) | 10~60 | |||||||||||||||
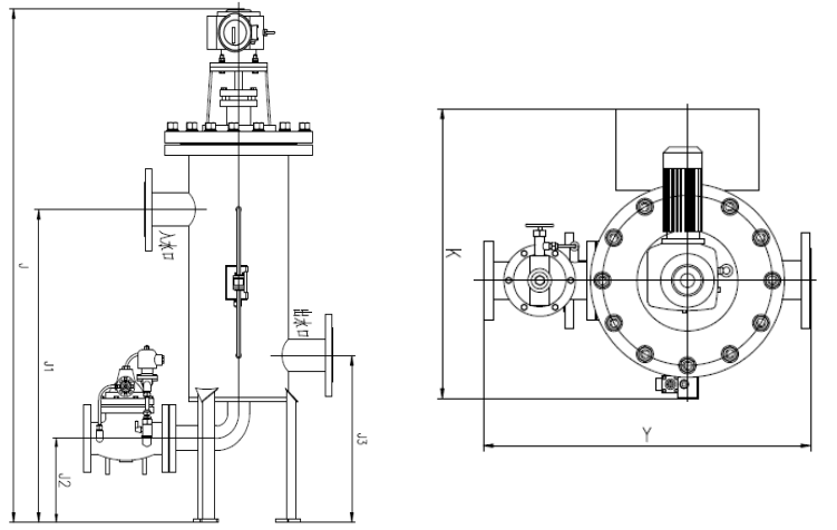
外形尺寸
尺寸參數表

產品展示







運行效果
eb09e037f7f4254359f1b785b773006f
糖心官网地址過濾設備攜手各行業打造滿足糖心官方官网下载需求產品的保障
| 設備原理: | 攔截吸附 | 設備型號: | MZX-N |
| 設計壓力: | 1.0mpa | 額定流量: | 15~3200m3/h |
| 設備材質: | 碳鋼 304不鏽鋼 | 濾網材質: | 304楔形網 |
| 過濾精度: | 50~200um | 適用溫度: | 60℃ |
| 設備功率: | 0.75~5.5kw | 控製單元: | PLC 、單片機 、繼電器 |
| 反洗方式: | 壓差控製 、 時間控製 | 適用範圍: | 循環或非循環冷卻水係統、熱交換係統、中央空調係統、集中供暖係統、熱水鍋爐係統 |
糖心官网地址過濾設備攜手各行業打造滿足糖心官方官网下载需求產品的保障